Rambergveien 12
Sted: Kaldnes
Adresse: Rambergveien 12
Byggeår: 2016
Oppvarming: Vannbåren varme/ elektriske varmekabler bad
Antall kvm: 30 kvm
Etasje: 4. etg
Antall soverom: 0 (sengealkove)
Nærhet til: nærhet til alle sentrumsfasiliteter, sjønært og kort avstand til flere fine turområder

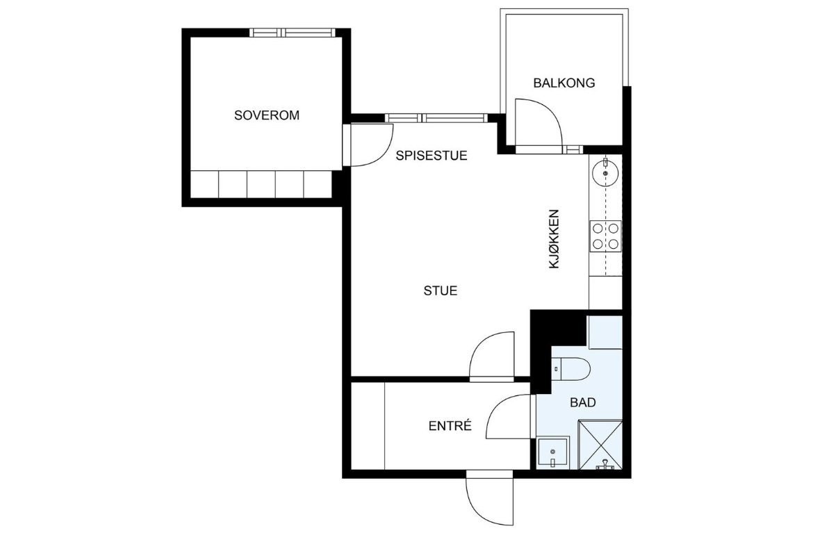
Sted: Kaldnes
Adresse: Rambergveien 12
Byggeår: 2016
Oppvarming: Vannbåren varme/ elektriske varmekabler bad
Antall kvm: 39 kvm
Etasje: 3. etg, føles som 2. etg
Antall soverom: 1
Nærhet til: nærhet til alle sentrumsfasiliteter, sjønært og kort avstand til flere fine turområder
